企业新闻
液化气压缩机组整体结构有哪些?
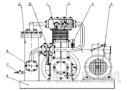
液化气压缩机主要用于液化石油气的装车、卸车、倒罐、余气回收、罐装、残液回收等多种作业,是液体输送、气体回收的理想设备。因此它广泛应用于液化石油气储配站、混气站、气化站、罐装厂、汽车加气站等,特别适用于大、中、小型液化石油气站。组整体结构如下图所示:主要是由1—压缩机;2—仪表;3—气液分离器;4—两位四通阀;5—进气过滤器;6—防爆电动机;7—排液阀;8—安全阀;9—底座;10—防护罩等所组成。

电动机通过三角皮带驱动压缩机运转,气体经两位四通阀进入进气过滤器,由过滤器进入气液分离器,并由气液分离器的顶部流经进气管进入压缩机缸盖的进气腔,气体在压缩机内被压缩后由缸盖的排气腔经排气管、止回阀流至两位四通阀,再由两位四通阀排出。这里应该特别指出的是:两位四通阀的作用只是颠倒管线上的气体流向,不论两位四通阀手柄处在正位还是反位,上述压缩机组的气体流向都不会改变。
上一篇:天然气压缩机气路系统简介
